Text inzerátu *
V exkluzívnom zastúpení majiteľa Vám ponúkame na predaj pozemky v blízkosti Thermal Park Novolandia.
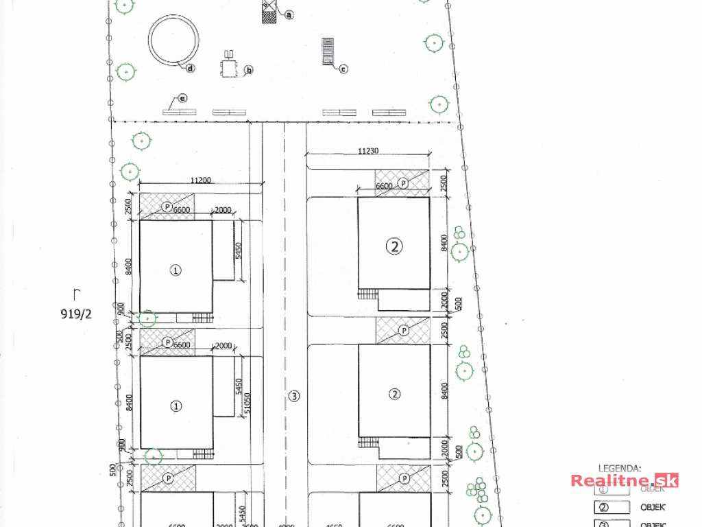
Celková rozloha pozemkov je 7704m2.
Na pozemky sú predpripravené projekty na výstavbu rekreačného a ubytovacieho zariadenia.
Pozemky sa predávajú z rodinných dôvodov.
Celková rozloha pozemkov je 7704m2.
Na pozemky sú predpripravené projekty na výstavbu rekreačného a ubytovacieho zariadenia.
Pozemky sa predávajú z rodinných dôvodov.
Špecifické detaily inzerátu
Typ pozemku
pozemky pre rod. domy
Typ ponuky
predaj
Vlastníctvo
osobné
Výmera pozemku m2
7704
Stav ponuky
aktívna
Inzerent:
realitná kancelária
Umiestnenie
mimo zastav. územie (extravilán)
Prístupová cesta
hlina (neupravená), kameň/štrková
Terén
rovinatý
Lokalita
Rapovce, Lučenec, Banskobystrický kraj, Slovensko
Cena:
25 €
Kontakt
inzerent / meno / RK:
Fil-real s.r.o.
TELEF. kontakt:
09..........zobraziť
Nezabudnite spomenúť že voláte z Realitne.sk
Pridal






